製品画像 KART-1200 ベルトコンベヤ用ローラ T型自動調芯リターンローラセット ベルト巾1200㎜ キャリヤローラ コンベヤ
コンベヤ>ベルトコンベヤ>リターンローラセット>T型自動調芯リターンローラセット/KART
KART-1200

T型自動調芯リターンローラ
ベルト巾1200㎜

製品説明
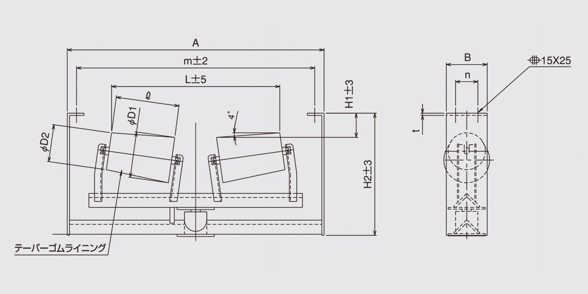
KAR型自動調芯リターンローラセットと同じくベルトの蛇行を修復することが目的ですが両端にガイドを設けておらず、テーパーゴムライニングを施したローラを使用することで蛇行を修復することができます。
また、ゴムライニングを採用したことで、ローラとベルトの摩擦によるベルトの損傷を大幅に防止できます。主にベルトの正逆運転を行うコンベヤにご使用できます。
製品画像
型式の選び方
KART
KART:T型自動調芯リターンローラセット
KARTB:T型自動調芯リターンスタンドのみ
-
1200
ベルト巾
仕様

■図面

■仕様

型式 KART-1200
ベルト巾 1200
D1 159
D2 100
420
m 1490
A 1550
H1 60
H2 391
L 1262
n 100
B 150
t 9.0
セット重量(㎏) 56.8
ブラケット(2枚分)重量(㎏) 39.2
単位:㎜

■その他

関連製品一覧 KART-1200 ベルトコンベヤ用ローラ T型自動調芯リターンローラセット ベルト巾1200㎜ キャリヤローラ コンベヤ

ダウンロード
当製品カタログページ

お問い合わせ