コンベヤ製品のパイオニア 株式会社マキテック

コンベヤ製品のパイオニア 株式会社マキテック コンベヤ製品のパイオニア 株式会社マキテック お問合せ
サイトマップ
TOP > 製品情報 > 搬送システム製品 > パレット・オリコン・容器洗浄・清掃システム >パレット清掃機
製品情報 > 搬送システム製品

パレット清掃機
MBP-200(特)
MBP-200(特)
MBP-200(特) MBP-200(特)


MBP インライン型
MBP インライン型
水を使わない本格的なパレット清掃機です
【特徴】
[水を使わないため、面倒な廃水処理が不要]
・回転ブラシ・エアブロー・集塵機の組合せで、パレットの汚れを除去し集塵機で回収します。
・ユーティリティーは電気とエアのみです。
[ホコリを飛散させない構造]
・集塵機にて、内部を負圧に保つためホコリの外部飛散は最小に抑えられます。
[強力な清掃力]
・強力な回転ブラシでパレット上下面を清掃、エアブローで残ったホコリを吹き飛ばし、集塵機で回収します。


インライン型パレット清掃機もあります
【特徴】
[既設パレット搬送ラインに組込み可能]
・パレット搬送ラインやパレタイザーラインに組込み、清掃したきれいなパレットに商品を積付けを可能にします。
・ユーティリティーは電気とエアのみです。
[パレット洗浄機の前工程で使用]
・洗浄前にブラシ掛けでパレットの汚れを事前除去 洗浄水の汚れを大幅に低減できます。

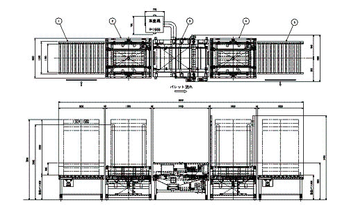
仕様 (単位 mm)
型式 能力 パレット 全長 全幅(本体) 機器構成
(1) (2) (3) (4) (5) (6)
MBP-200 200枚/時 14型まで 9,600 1,890 OP OP
MBPインライン型 任意 14型まで 2,200 1,890 OP OP OP
※「OPはオプション装備です。」
【機器構成】
(1)上下面回転ブラシ (2)側面・溝ブラシ (3)上面エアブロー
(4)下面エアブロー (5)側面エアブロー (6)集塵機



【MBP-200型 外観寸法図】
MBP-200型 外観寸法図


この製品を問い合わせる この製品のカタログ請求をする

前のページへもどる このページの先頭へ
 
製品メニュー
-搬送システム製品-
パレット・オリコン・容器 洗浄・清掃システム
パレット清掃機
 
回転洗浄・回転水切り式パレット洗浄機
オリコン洗浄・水切り機

オリコン・容器脱水機

パレット検査・仕分け・修理装置
水濾過器

グラビティローラコンベヤ
ホイールコンベヤ
ベルゴッチ(ミニベルト)
アラエール ステンレスコンベヤ
テーブルリフター
バーチカルコンベヤ
モジュコン
駆動コンベヤ
金型交換システム
ベルトコンベヤ用ローラ
液体・粉体生産システム
コンベヤパーツ
エアーリフト
ロボットシステム
カップコンベヤ
物流機器
建設関連事業
福祉・介護事業
環境事業
製品データ一覧
3Dデータ一覧
カタログ請求
目的別Q&A
用語集
太陽光発電システム
Copyright © 2006 Makitech Japan Corporation. All rights reserved.