製品説明
モーターローラで駆動するシートシャッターです。
開口部やコンベヤラインに設置して簡易的に区分けできます。シートは左右の端をレールで挟んでいるため、簡易的な防虫対策や空調管理に便利です。また、エアーを使用しておりませんのでエアーレス環境でもご使用いただけます。
製品画像
型式の選び方
SMS
型式
-
W800
開口幅(W)
-
H2000
開口高さ(H)
仕様

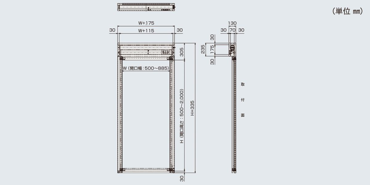
■図面

■仕様

型式 SMS
シャッター奥行(L) 130
装置高さ 835~2335
開口幅(W) 500~885
開口高さ(H) 500~2000
駆動源 DCモーターローラΦ60.5
電源 DC24V(専用ドライバ使用時)
単相100Vまたは200V(手動操作BOX使用時)
ケーブル長さ ドライバカード端子渡し
またはBOXより5000
オプション 中継BOX、手動操作BOX
開閉速度(m/min) 3.3~33.4m/min
※単位:mm
※シャッター閉時にワーク等が衝突したり、強風を直に受けた際はシートが脱落する場合があります。
※シャッターの前後で大きな気圧差のない環境でご使用ください。
※標準以外の仕様も製作いたしておりますのでご相談ください。
ダウンロード
SMS
カタログ

お問い合わせ